Маркетинг


Над единой концепцией развития проекта Уткина Заводь работали следующие международные и отечественные компании:

Knight-Frank

Анализ экономической целесообразности использования земельного участка на 1 этапе развития проекта

Магазин Магазинов

Коммерческая концепция торгового центра в составе проекта

Colliers Int. и Praktis CB

Совместная работа по разработке единой концепции проекта на основании анализа наилучшего и наиболее эффективного использования земельного участка

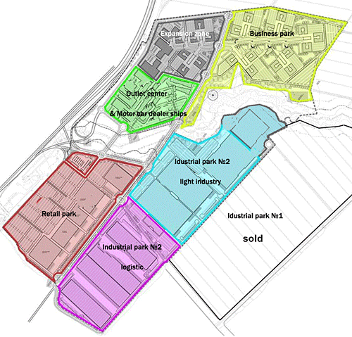
Итогом их работы стала концепция развития проекта, предполагающая реализацию нескольких функций - большой торговой зоны, офисной недвижимости, индустриального парка.

Торговая зона, расположенная на первой линии проекта вдоль КАД, состоит из новых форматов аутлет центра и ритейл парка, наряду с которыми предполагается разместить дилерские автоцентры.

Офисная составляющая подразумевает строительство Бизнес парка европейского образца с апарт-отелем.

Две зоны для размещения логистических комплексов, складских помещений и предприятий легкой индустрии.

В составе маркетинговой концепции часть территории отведена под зону развития, позволяющую расширить как торговую, так и офисную функцию в соответствии с требованиями рынка.

Оперативная виртуальная карта проекта

Оперативная виртуальная карта проекта

Покупателю

Представляем Вам информацию полезную при выборе участков в индустриальном парке №2 в секторе А «Логистика и лёгкая индустрия» и в секторе Б «Пищевой и фармацевтический кластер». Здесь Вы можете скачать презентации, посмотреть карту и заполнить анкету покупателя.